Jugendtreff im Renndorf in Sicht
Mit einer Enthaltung stimmte
der Rat in Abwesenheit der Jugendlichen der Renngemeinde
für die Errichtung eines Jugendtreffs. Da nicht weiter
auf eine feste Räumlichkeit gewartet werden soll, wird
der Jugendtreff in einem provisorischen Containerbau
nördlich der Freilufthalle zunächst für zwei Jahre seine
Heimstatt finden.
Bereits in der letzten Ratssitzung
hatte Martin Theodor vom Landauer Beratungszentrum Kobra
das Ergebnis der Befragung der Iffezheimer Jugendlichen
und das daraus abgeleitete Konzept vorgestellt. Wie
von Theodor vorgestellt, war in der Verwaltungsvorlage
ein von 16:00- 22:00 Uhr geöffneter Jugendtreff unter
Führung eines Sozialarbeiters dargestellt. Bürgermeister
Peter Werler schloß sich dem im Konzept artikulierten
Wunsch der Jugendlichen nach einer Örtlichkeit außerhalb
des Dorfes an und stellte dem Rat einen Containerbau
im Anschluß an die Freilufthalle bei der Rennbahn vor.

Für die CDU-Fraktion befürwortete
deren Fraktionsvorsitzender Berthold Leuchtner den Vorschlag
der Verwaltung, stellte jedoch Prämissen für eine Zustimmung
in den Raum. Der Jugendtreff sollte nicht als zusätzliches
Freizeitangebot implementiert werden, sondern präventive
Jugendsozialarbeit unter dem Stichwort „Streetworking“
betreiben. Darüber hinaus solle später Schulsozialarbeit
als Aufgabe hinzukommen. Auf keinen Fall solle der Jugendtreff
zur Konkurrenz der Jugendarbeit der Vereine werden.
Nach dem Willen der CDU-Fraktion sollte zunächst die
Personalfrage geklärt werden und mit der gefundenen
Person die Raumfrage angegangen werden. Obwohl er in
dem Kobra Konzept die Kernaussage, daß Iffezheim ein
Jugendzentrum brauche, vermisste, befürwortete Manfred
Weber (FWG) die Einrichtung eines Jugendtreffs. Er konnte
sich aber mit der Containerlösung ebenso wenig anfreunden
wie seine Fraktionskollegin Andrea Winkler, die auf
die Notwendigkeit einer Jugendeinrichtung als vereinsfreiem,
zwanglosem Treffpunkt verwies.
Ganz konträr war die Sichtweise
von Harald Schäfer (SPD), der in dem Jugendtreff einen
Luxus sah, den sich die Gemeinde in finanziell engen
Zeiten nicht und auf Pump schon gar nicht leisten könne.
Es sei nicht vertretbar, für jeden Jugendlichen im Treff
1 000 € im Jahr auszugeben. Als „Totschlagsargument“
bezeichnete Meingold Merkel (CDU) den ständigen Hinweis
auf die Finanzsituation und plädierte angesichts des
„rasanten Verlustes der Werte“ für einen Jugendtreff.
Die Raumfrage solle erst nachrangig geklärt werden.
Als „verwegen“ bezeichnete Bürgermeister
Werler die Bezeichnung „Luxus“ für die soziale Jugendarbeit
und wies darauf hin, daß seiner Meinung nach auch andere
Bevölkerungsschichten durch niedrige Steuern und Gebühren
subventioniert würden. Er bezifferte nach einer Anfangsinvestition
von 25 000 € die laufenden Kosten auf 40 000 € pro Jahr.
Er appellierte eindringlich an den Rat jetzt „Ja“
oder „Nein“ zu sagen und die Raumfrage nicht in den
Vordergrund zu stellen, denn sonst säße man in drei
Jahren noch da. Iffezheim solle mit den Containern als
„zweitbeste Lösung“ einsteigen.
Dem Appell schloss sich der Rat
mit der Enthaltung von Harald Schäfer an und beschloss
die Einrichtung eines Jugendtreffs unter Leitung einer
pädagogischen Fachkraft mit einem Deputat von 32 Stunden.
Das Projekt wurde auf Drängen von Karlheinz Schäfer
zunächst auf zwei Jahre befristet, in denen die Gemeinde
aufgefordert wurde, ein festes Domizil zu finden, um
die – laut Manfred Weber – „asozialen Verhältnisse“
in den Containern zu beenden.
-Angesichts der Aussage von Martin
Theodor, daß der Jugendtreff allein 32 Arbeitsstunden
beanspruche und mit verbleibenden acht Stunden einer
Vollzeitkraft kein effektives Streetworking zu bewerkstelligen
sei, stellt sich natürlich die Frage, was im Bereich
Sozialarbeit mit einer 32-Stunden-Teilzeitstelle zu
erreichen ist. -
Ganztagsbetreuung an der Grundschule
kommt
Einstimmig beschloss der Rat die
Einführung einer Ganztagsbetreuung an der Grundschule.
Hierzu wird die derzeit von 7:30 – 13:30 Uhr bestehende
Kernzeitbetreuung auf den Nachmittag bis 16:30 ausgedehnt.
Zum Abdecken der zusätzlichen drei Nachmittagsstunden
mit zwei Betreuern werde eine zusätzliche Kraft mit
einem Deputat von 15 Stunden eingestellt, erläuterte
Kämmerer Siegbert Heier die Personalplanung. Sollte
sich der in der Umfrage ermittelte Bedarf von 63 betreuten
Kindern am Vormittag und 38 Kindern am Nachmittag realisieren,
würden durch die Einrichtung einer dritten Morgengruppe
zusätzliche Landeszuschüsse fließen, die durch Mittel
für die Nachmittagsbetreuung der Schulbehörde am Regierungspräsidiums
ergänzt würden. Dadurch wäre es möglich, den aktuellen
Gebührensatz von 61€ sowohl für die Vormittags- als
auch für die Nachmittagsbetreuung zu veranschlagen,
ging Heier auf die finanzielle Situation aus. Einer
Einheitsgebühr widersetzte sich Karlheinz Schäfer (SPD)
vehement: „Das zusätzliche Angebot muß zusätzlich kosten!“
Er verlangte von Kämmerer Siegbert Heier eine detaillierte
Kostenaufstellung der beiden Betreuungsangebote, die
auch sofort mit 33 € für den Vormittag und zusätzlich
41 € für den Nachmittag geliefert wurde. In der Befürchtung,
den Nachmittag zu unattraktiv zu machen, beschloss der
Rat für die Vormittagsbetreuung 45 € und für den Nachmittag
zusätzlich 25 € zu verlangen. Die Kosten für den Mittagstisch
werden separat berechnet.
Da wie Bürgermeister Peter Werler
meinte, unwägbar sei, wie sich das Umfrageergebnis in
der Zahl der betreuten Kinder niederschlage, werden
die Gebühren jährlich neu festgesetzt.
Iffezheimer Einwendungen zum Teil erfolgreich
Teilerfolge konnte die Renngemeinde
mit ihren Einwendungen gegen die Planung zum Ausbau
des Baden Airparks erreichen. Eine störende Zunahme
des Lärmes für die Bevölkerung wurde jedoch verneint
Rechtsanwalt Günther Stüber informierte
den Gemeinderat über den Ausgang des Planfeststellungsverfahrens
und die Berücksichtigung der von der Gemeinde Iffezheim
vorgebrachten Interessen.
Die Gemeinde habe Bedenken gegen
die Ausgleichsflächen geltend gemacht, weil sie darin
einen Verstoß gegen die Regionalplanung sah, welche die
beanspruchten Flächen als Teil des Kieskonzeptes 2015
auswiesen. Durch die Optimierung der Planung würden
große Teile der ursprünglich im Gewann „In den langen
Jaucherten“ für Ausgleichsmaßnahmen vorgesehenen Flächen
nicht mehr benötigt. Insgesamt sei die beanspruchte
Gemeindefläche von 2,1 auf 0,12 ha gesunken, rechnete
der Anwalt vor.
Laut Planfeststellungsbeschluss
bestehe für die gemeindlichen Einrichtungen wie Schulen,
Kindergärten und Friedhof keine unzumutbare Lärmbeeinträchtigung.
Elternbeirat der Grundschule und die Gemeinde hatten
im Zuge der Planung Bedenken wegen des zunehmenden Fluglärmes
erhoben. Laut dem von der Planungsbehörde zu Grunde
gelegten Maßstabes des Lärmmediziners Professor Klaus
Scheuch, läge tagsüber der höchste Beurteilungspegel
bei 43,7 dBA und nachts bei 36,7 dBA. Die Richtwerte
von 65 dBA am Tag, bzw. 55 dBA nachts würden laut Lärmgutachten
nicht erreicht. Laut Gutachten liege die Zunahme des
Verkehrslärm durch B36 und B500 in einem nicht hörbaren
Bereich. Daher könne er keine weiteren rechtlichen Schritte
empfehlen.
- Zum Vergleich: Laut der Schalldruck-,
Schallpegeltabelle
des Tontechnikers Dipl. Ing. Eberhard Sengspiel sind
bereits ab 40 dBA Lern- und Konzentrationsstörungen
möglich. Nach der gleichen Quelle verursacht ein langsam
laufender, sehr leiser Zimmerventilator einen Schallpegel
von 40 dBA und liegen die üblichen Wohngeräusche bei
45 dBA. In einem ruhigen Schlafzimmer liegt nächtens
der Schallpegel bei 30 dBA. Das Umweltbundesamt sieht,
Fluglärmbelastungen von 55 dB (A) als Grenze zur erheblichen
Belästigung an. -
Zum Vorwurf des Regierungspräsidiums,
die Gemeinde handele als Mitgesellschafter mit ihren
Einsprüchen widersprüchlich, entgegnete Bürgermeister
Peter Werler, daß die Gemeinde nur einen Anteil von
einem Prozent halte und nicht immer der gleichen Meinung
wie die Mehrheit sein müsse.
Auf Nachfrage von Hubert Schneider
zum weiteren Gang des Verfahrens, erläuterte Stüber,
daß der Vorhabensträger auf die Gemeinde und die privaten
Grundstückseigentümer zugehen werde. Sollte keine Einigung
über den Grundstückskauf erzielt werden, werde ein Enteignungsverfahren
in Gang gesetzt.
Verwaltung arbeitet wirtschaftlich
In der Ratssitzung vom Montag
präsentierte Diplom-Verwaltungswirt Reiner Kurz sein
Gutachten zur Organisation der Kernverwaltung der Gemeinde
Iffezheim. Ausgehend von der Ist-Situation habe seine
Kommunalberatungsgesellschaft die vorhandenen Stellen
bewertet und die Arbeitsabläufe analysiert. Insgesamt
komme er zu dem Schluß, daß in der Renngemeinde nur
die notwendigsten Stellen vorhanden und von qualifizierten
und motivierten Kräften besetzt seien. Gegenüber dem
Durchschnitt vergleichbarer Gemeinden habe Iffezheim
1,6 Arbeitskräfte weniger, leide aber nicht an einer
Unterdeckung. Mit einem Anteil der Personalkosten von
21% des Verwaltungshaushaltes stehe die Gemeinde sehr
gut da.
Aus der Analyse der Arbeitsabläufe,
der Schnittstellen und der Arbeitsvolumina habe er Vorschläge
zur Verlagerung einiger Tätigkeiten erarbeitet. Ziel
sei hierbei auch die Entlastung des Hauptamtes gewesen.
Nach Kurz's Vorschlag soll der Betrieb der gemeindlichen
Einrichtungen wie Fest- und Freilufthalle vom Hauptamt
ins Rechnungsamt wandern. Die Organisation von Ehrungen
und Empfängen künftig durch das Sekretariat abgewickelt
werden. Die Verwaltung der eigenen Waldungen mit dem
zugehörigen Rechnungswesen solle vom Rechnungsamt komplett
an den Forst ausgelagert werden. Kurz empfahl die Einstellung
einer geringfügig beschäftigten Kraft zur Erfassung
der Rapportzettel des Bauhofes.
Zwar habe er drei überqualifizierte
Stelleninhaber ausgemacht, jedoch stelle sich die Frage
ob weniger qualifizierte die Aufgaben so reibungslos
erledigen könnten. Voll des Lobes war Kurz über die
DV-technische Ausstattung des Rathauses. Letzendlich
müsse der Bürgermeister als Verwaltungsleiter über seine
Vorschläge entscheiden, schloss Kunz seine Ausführungen.
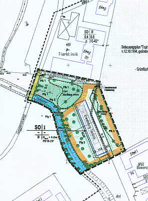
Bebauungsplan Tierklinik verabschiedet
Einstimmig
stimmte der Gemeinderat dem vorhabenbezogenen Bebauungsplan
zur Erweiterung der Tierklinik zu. Dieser sieht nördlich
des Örtergrabens einen 8 mal 45 Meter langen Neubau
für Untersuchungsräume und Stallungen vor. Derzeit wird
das Gelände als Abstellplatz für Pferdetransporter genutzt.
Der für dass Verfahren notwendige Durchführungsvertrag
schreibt eine Frist von drei Jahren zur Verwirklichung
des Bauvorhabens, sowie die Kostenübenahme für die Erstellung
des Bebauungsplanes und die Erschließung durch den Vorhabenträger
– sprich die Tierklinik – vor.
Halbzeit beim Haushalt
Die Ratssitzung nutzte Kämmer
Siegbert Heier, den Räten die Halbzeitbilanz des Gemeindehaushaltes
vorzulegen. Der Verwaltungshaushalt stehe derzeit mit
228 000 € im Plus, während der Vermögenshaushalt mit
knapp 720 000 € im Soll stehe. Das Plus im Verwaltungshaushalt
liege an gestiegenen Einnahmen aus der Gewerbesteuer
mit Berechnungsgrundlage 2003. Angesichts der Konjunktur
des Jahres 2004 befürchte er jedoch hohe Rückzahlungen,
welche die Mehreinnahmen aufbrauchen werden. Wie Heier
ausführte, sei der im Haushalt vorgesehene Kredit noch
nicht in Anspruch genommen worden, er rechne damit jedoch
im Zuge der Sanierungsmaßnahmen der Siedlungsstraße.
Derzeit weise die Rathauskasse einen nicht erfreulichen
negativen Bestand von 160 000 € aus, der im August jedoch
durch Abschlagszahlungen für die Wasserver- und entsorgung
sowie die fälligen Steuern ausgeglichen werde.
|